3月17日,嘉峪关市自然资源局《华能(嘉峪关)新能源有限公司高效异质结电池组件30兆瓦实证平台光伏示范项目》批后公布,该项目建设规模 1677.74㎡,建设地点位于嘉西光伏产业园。
此前,该项目因方案调整,于3月5日发布公告,注销原《建设工程规划许可证》。

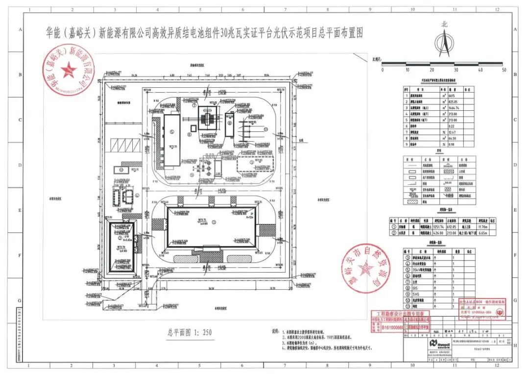
批后公布详情见下:
《华能(嘉峪关)新能源有限公司高效异质结电池组件30兆瓦实证平台光伏示范项目》批后公布
依据《中华人民共和国城乡规划法》、《甘肃省建设项目规划许可办法》(省政府169号令)有关规定,现将《华能(嘉峪关)新能源有限公司高效异质结电池组件30兆瓦实证平台光伏示范项目》建设工程规划许可证、总平面图、鸟瞰图予以公布,敬请社会各界监督。监督电话:0937-6306216。
建设单位:华能(嘉峪关)新能源有限公司
建设位置:嘉峪关嘉西光伏产业园
建设规模:1677.74㎡
证照编号:620200202600005



发表评论